News
Group accommodation
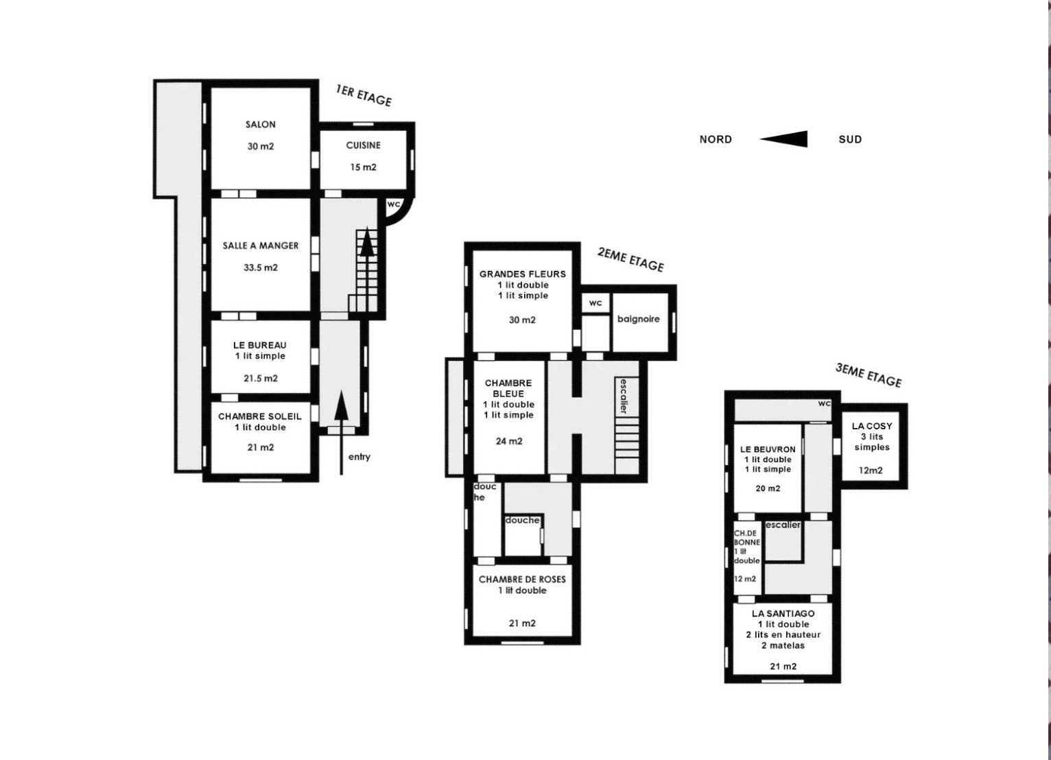
In Burgundy, two hours below Paris, lies the picturesque Moulin du Merle. An old water mill with 8 bedrooms that can accommodate around 15 guests. I have spent a trial period at the Moulin, doing research for an artist residency while organising group events and a documentary workshop.
